About the Property
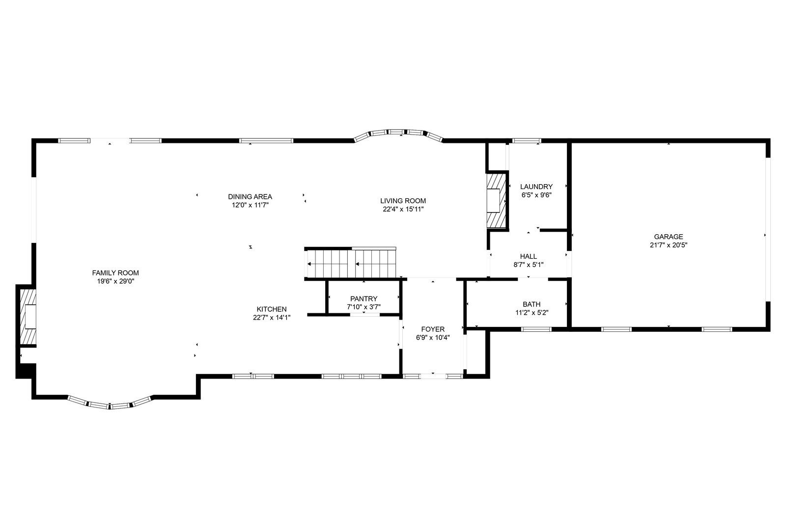
Situated on a picturesque tree-lined lot, blending timeless curb appeal with serene, park-like surrounding. Over a half-acre lot. Birmingham Schools! West Maple Elementary, Berkshire Middle School & Groves High School. Large circular driveway, paver front walkway. Slate foyer entry opens to an expansive open-concept floor plan. Gleaming hardwood floors and large windows that floor the home with natural light. The chef’s kitchen is centered around a large island with room for countertop seating. Granite counters, soft-close shaker style cabinetry, double oven plus a third oven in the range. Prep/serving area and a walk-in pantry complete the kitchen. Family room and dining completely open to the kitchen. Family room beamed ceiling detail, and brick fireplace. Floor to ceiling windows and dual door walls open to the patio creating an indoor-outdoor flow perfect for entertaining. Living room bay window and fireplace. Entry level full bathroom, built-ins in both the laundry and mud room. Hardwood floors in all four bedrooms. Primary suite granite bath, euro glass shower. Hallway granite vanity featuring a glass vessel sink, bathtub/shower glass enclosure. Cedar closet. Lower level is already framed to be drywalled, would make for a great exercise area and kid's play room. Two large glass block windows could easily be converted to daylight windows with egress. Private and serene backyard with a stamped concrete patio overlooking the yard. Lush landscaping and mature trees. Home security system. New furnace and air conditioning - 2022. Full home generator installed 2023. New gutters with gutter guards. Close proximity to Detroit Country Day, Brother Rice & Marion Schools. Minutes from all the dining & shopping on Telegraph and Orchard Lake. Enjoy all that Franklin Village has to offer; the Franklin Cider Mill, playground, tennis courts & shopping. Exceptionally maintained!